Eladó Téglalakás, Kaposvár

#679900131

CSAK NÁLUNK  
Eladó Téglalakás

39.9 millió Ft

Kaposvár Belváros
Alapterület:
90 m2
Szobák száma:
2 + 2
Állapot:
Átlagos
Építési mód:
Tégla
Jó közlekedéssel

Kérjen személyes bemutatást!
Adja meg adatait, és hogy mikor érne rá!

Az Adatkezelési tájékoztatót elolvastam és elfogadom.

Megfelelő időpontok

Hétköznap délelőtt
Hétköznap délután
Hétköznap este
Hétvégén délelőtt
Hétvégén délután
Hétvégén este
Kérés elküldése
1. Emelet
Nincs
Konvektor
Utcára
Bútorozatlan
Nyugat
2
Összkomfort
Szélessávú (>10Mbps)
Bevezetve (230 Volt)
Van, saját vízórával
Vezetékes gáz
Közműhálózatba bekötve

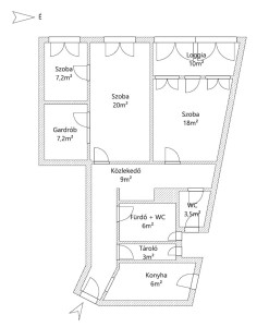
Első emeleti 90 m2-es erkélyes polgári lakás, autóbeállóval eladó!

Csak nálunk!!! A Bella Ingatlaniroda eladásra kínál Kaposváron, a belváros szívében egy első emeleti 90 m2-es, erkélyes polgári lakást, autóbeállási lehetőséggel!

 

Kaposvár belvárosában jó helyen, a Corso bevásárlóközpont közelében kínálunk eladásra egy első emeleti, 90 m2-es, tégla építésű polgári lakást. A lakáshoz tartozik egy 10 m2-es loggia is.
Az ingatlanban két nagy világos szoba és két félszoba található. A 4 méteres belmagassága még tovább fokozza a tágasság érzetét.
A konyha mellett helyet kapott egy kamra is. A fürdőszobában és külön is megtalálható plusz egy wc+kézmosó.
A lakás fűtéséről gázkonvektor gondoskodik, a meleg vizet villanybojler szolgáltatja.
Az ingatlan rezsi költsége nagyon kedvező. Kiválóan alkalmas rendelőnek, irodának is.
Az ingatlanhoz a belső udvarban található parkolóhely, amit akár ideiglenes bejelentkezéssel jelképes összegért lehet évente bérelni.

 

Az ingatlan rengeteg lehetőséget rejt, alakítsa kedvére! Saját részre vagy akár befektetésnek is tökéletes választás!

 

Hívjon, ne maradjon le róla!!!! Remek ajánlat!!!

 

Amennyiben szeretné megtekinteni vagy további kérdése lenne, kérem hívjon telefonon! Köszönöm!

 

Tel: +36 70 431 2005

 

Azonosító: 238

Kérdése van?
Adja meg adatait és felhívjuk!

Az Adatkezelési tájékoztatót elolvastam és elfogadom.
Üzenet küldése